
MIL-PRF-62678B
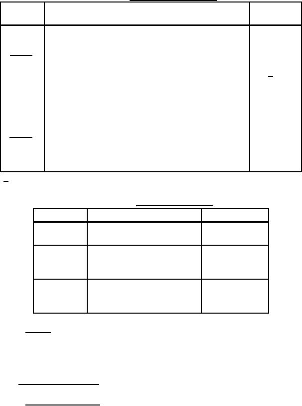
TABLE V. Classification of defects
Method of
Category
Defect
examination
None
Critical
Major:
Assembly, incomplete (see 3.3)
101
Visual
Dimensions affecting interchangeability, out of
102
SIE 1/
tolerance (see 3.3 and 3.3.3)
Inlet/outlet threaded connections do not interface with
103
SIE
mating threaded part (see 3.3.2).
Faulty workmanship affecting performance (see 3.6)
Visual
104
Minor: Dimensions not affecting interchangeability, out of
SIE
tolerance (see 3.3 and 3.3.3).
201
202
Identification marking, improper (see 3.5).
Visual
203
Faulty workmanship affecting appearance (see 3.6).
Visual
1/ SIE = Standard Inspection Equipment.
TABLE VI. Control test sequence.
Sample No.
Test
Paragraph No.
Output test
4.6.3.1
1
Dielectric strength test
4.6.3.2
Output test
4.6.3.1
2
Vibration resistance test
4.6.4.3
Output test
4.6.3.1
Output test
4.6.3.1
Shock resistance test
4.6.4.4
3
Output test
4.6.3.1
4.5.1 Failure. Failure of any pump assembly to pass any of the control tests shall be
cause for the Government to refuse acceptance of the production quantity represented, until
action taken by the contractor to correct defects and prevent recurrence has been approved by the
Government.
4.6 Methods of inspection.
4.6.1 Materials and design. Conformance to 3.2 through 3.3.1 shall be determined by
inspection of contractor records providing proof or certification that design, construction,
processing, and materials conform to requirements. Applicable records shall include drawings,
specifications, design data, receiving inspection records, processing and quality control
standards, vendor catalogs and certifications, industry standards, test reports, and rating data.
10
For Parts Inquires call Parts Hangar, Inc (727) 493-0744
© Copyright 2015 Integrated Publishing, Inc.
A Service Disabled Veteran Owned Small Business